Teilneubau und Bestandsmodernisierung Grundschule Lonsee
Sinabronner Straße 7, 89173 Lonsee
Teilneubau Mensa, Ganztagesbereich, Küche, Aula, Multifunktionsraum
offenes Lernkonzept mit zentraler Lernwerkstatt und Differenzierung
Bestandsmodernisierung
Bauherr
Gemeinde Lonsee
Leistungsumfang
LPH 1-9 HOAI
Brandschutznachweis
Kenndaten
NF Neubau 944 m², NF Bestand 505 m², BGF Neubau 1.494 m², BGF Bestand 700 m²
VGV Zuschlag 01|2021
Planungsbeginn 02|2021
Ausführung 05|2023 bis 08|2025
© Fotos - Sebastian Schels
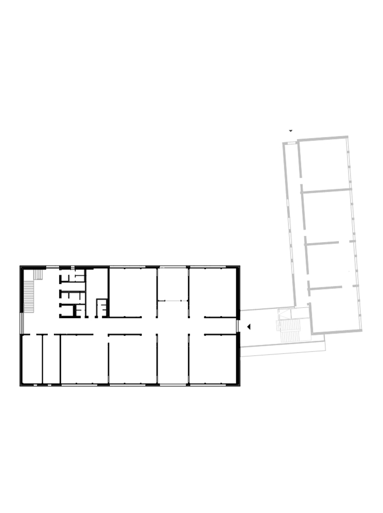
Die Grundschule in Lonsee bestand aus 3 Gebäuden aus unterschiedlichen Baujahren. Aufgrund steigender Schülerzahlen und der Anforderungen an die Räume für eine Umsetzung der modernen Lehr- und Bildungspläne musste die Grundschule grundlegend umstrukturiert und erweitert werden. Auf dem bestehenden Pausenhof wurde ein zweigeschossige Teilneubau errichtet. Dieser wird über ein verglastes Treppenhaus mit dem modernisierten Gebäudeteil verbunden. Östlich des Neubaus entsteht nach Abbruch der Gebäudeteile 1-2 ein großzügiger, sinnvoll gegliederter Pausenhof mit Multicourt und Sitzstufenanlage.
Das Erdgeschoss des Neubaus beinhaltet den Ganztagesbereich mit Mensa, Ausgabeküche, multifunktionalen Musik-Bewegungsraum und Aula. Im Obergeschoss werden entsprechend dem modernem Lernkonzept 5 Klassen, 1 Differenzierungsraum sowie eine zentral gelegene Lernwerkstatt umgesetzt.
Im zu modernisierenden Bauteil bleibt die Verwaltung mit Lehrerzimmer mit kleineren Umbauten erhalten, der ehemalige Mehrzweckraum wird zu einem Werkraum umfunktioniert. Das Obergeschoss bietet künftig Platz für 3 Klassen mit einem Raum für Differenzierung, der über verglaste Türen den angrenzenden Klassenzimmern zuzuschalten ist.
Konstruktion | Nachhaltigkeit
Das Erdgeschoss des Neubaus wurde als Stahlbetonskelettbau mit tragender Bodenplatte und Stahlbetondecke umgesetzt. Darauf bildet ein Holzbau mit sichtbaren Sparren | Pfetten und einem flach geneigten, hinterlüftetem Satteldach das Obergeschoss aus. Die Fassade wird als vorgestellte Holz-Rahmen Elementen mit Holz-Alu-Fenstern und hinterlüfteter, vorvergrauter, vertikaler Holzverkleidung aus Fichte ausgeführt.
Das gesamte Planungsteam aus Architekten und Fachplanern verfolgt nachhaltige und ressourcenschonende Zielsetzungen durch einen reduzierten Einsatz von grauer Energie (Reduzierung von Stahlbetondecken und Minimierung von Stahlbauteilen in der Holzkonstruktion). Durch die Planung eines kompakten Baukörpers mit einem guten A | V – Verhältnis wird der Anteil von versiegelten Flächen auf ein Minimum reduziert. Bei der Ausführung wurden rückbaubaren Konstruktionen berücksichtigt, sowie regionale Baustoffe mit nachvollziehbaren Lieferketten verwendet.
Durch das verglaste Treppenhaus ist der modernisierte Bestandsbau nun barrierefrei nach DIN 18040 erschlossen und zusätzlich mit dem fehlenden zweiten Rettungsweg ausgestattet. Zudem wurde der Bestandsbau grundlegend brandschutztechnisch ertüchtigt.
Laufender Betrieb
Durch die städtebauliche Platzierung des Neubaus in den bestehenden Schulhof, blieben während der Baumaßnahme alle bestehenden Gebäudeteile in laufenden Schulbetrieb. So konnte auf Interimsmaßnahmen komplett verzichtet werden.
Fördermittel
Die Maßnahme wurde durch mehrere Förderprogramme von Bund und Land BW, wie Schulbau-, Ganztages-, Städtebauförderung sowie Ausgleichsstock gefördert. Das Büro LMJD unterstützte bei den entsprechenden Förderantragstellungen.











