Erweiterung Johannes-Helm-Schule Schwabach mit 2-Fach Turnhalle
Penzendorfer Str. 10, 91126 Schwabach
Erweiterung der Grundschule zu einer 5-zügigen Grundschule mit Ganztag, Mensa, Verwaltung und Werkräumen und der Sporthalle als 2-FachTurnhalle mit mobiler Klapptribüne. Sanierung der bestehenden Grundschule.
Bauherr
Stadt Schwabach
Leistungsumfang
LPH 1-9 HOAI
Brandschutzplanung
Kenndaten
NF Neubau 4.720 m², NF Bestand 1650 m²
VGV Zuschlag mit Plangutachten 11|2020
Planungsbeginn 12|2020
Ausführung 04|2022 bis 07|2025
© Fotos - Oliver Heinl
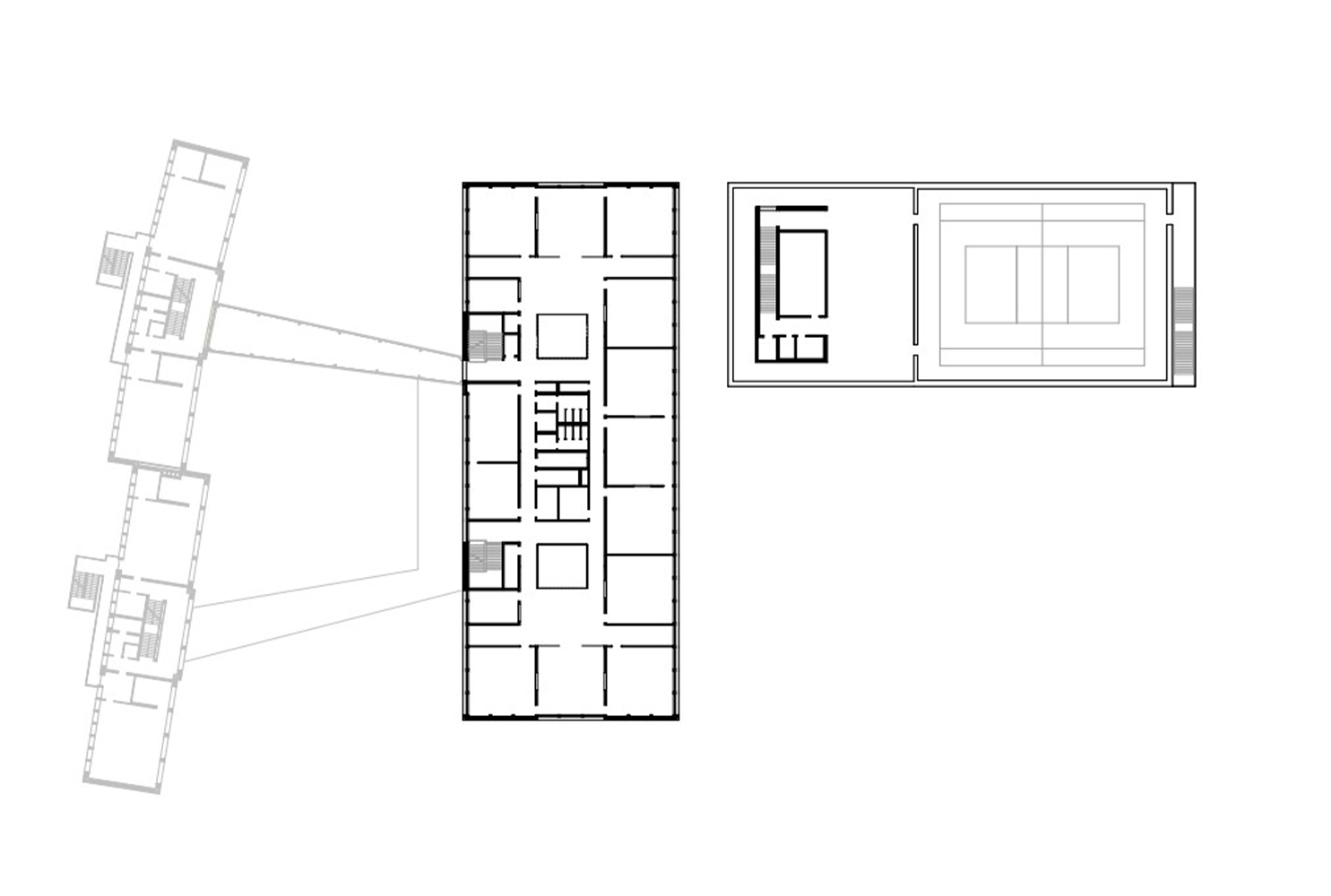
Der Schulstandort der Johannes-Helm-Grundschule an der Penzendorfer Straße in Schwabach wird um einen dreigeschossigen und zum Bestandsschulhaus leicht gedrehten Erweiterungsbau im Bereich der abzubrechenden Turnhalle ergänzt. Die um ein Geschoss eingegrabene Sporthalle wird parallel der Penzendorfer Straße angeordnet.
Durch die Ausrichtung und Lage des Neubaus wird eine neue, städtebaulich prägnante Adresse an Penzendorfer Straße in Verbindung mit der geplanten Bushaltestelle gebildet. Der neue barrierefreie Eingangsbereich wird gerahmt und akzentuiert durch eine Brücke und eine Überdachung zum Bestand. Durch die mittige Lage des Eingangs ist eine Pufferung der morgendlichen Schülerströme von der Penzendorfer Straße, wie auch von der Wallenrodstraße gewährleistet.
Der Pausenhof, welcher sich im Süden des Neubaus fortsetzt, wird strukturiert durch den vorhandenen Höhenausgleich, der durch Rampen und Spielebenen barrierefrei hergestellt wird.
Das Biotop östlich des Förderzentrums soll als natürlicher Puffer zur Weißenburger Straße und als grüne Lunge und Naturressource in Form eines Lehrpfads ganz bewusst belassen werden und muss aufgewertet werden.
Der dreigeschossige Neubau beinhaltet die Mensa mit Küche, die Verwaltung, sowie die vier Züge der Grundschule mit Klassen-, Ganztags und Nebenräumen. Zudem wird über das Untergeschoss eine 2-fach-Sporthalle erschlossen, die auch der Vereinsnutzung mit Klapptribüne zur Verfügung steht. Der Bestand beinhaltet einen weiteren Zug, Angebote für die Nachmittagsbetreuung und Werkräume.
Der Neubau wird in einer Hybridbauweise als Stahlbetonskelettbau mit Flachdecken und nichttragenden Außenwänden aus Holzrahmenbau geplant. Die Fassade wird als hinterlüftete Holzfassade mit Farbakzenten und Fensterbändern geplant. Die Dächer werden extensiv begrünt, mit einer Photovoltaik ausgestattet, bzw. als Allwetterplatz genutzt.




















